Täiuslik kooslus dušiuste ASDP3-ga. Kombineerides selle fikseeritud seinaga dušiuksed ASDP3, loote endale ideaalse ruudukujulise või ristkülikukujulise dušinurga, mis vastab täpselt teie vajadustele. Ruumi praktiline kasutus – fikseeritud seina kõrvale saab paigutada pesumasina või valamu, tagades vannitoa maksimaalse funktsionaalsuse.
Suurused: 80 cm
Värvilahendus: profiil - must
Plastikust vitraaž: Läbipaistev
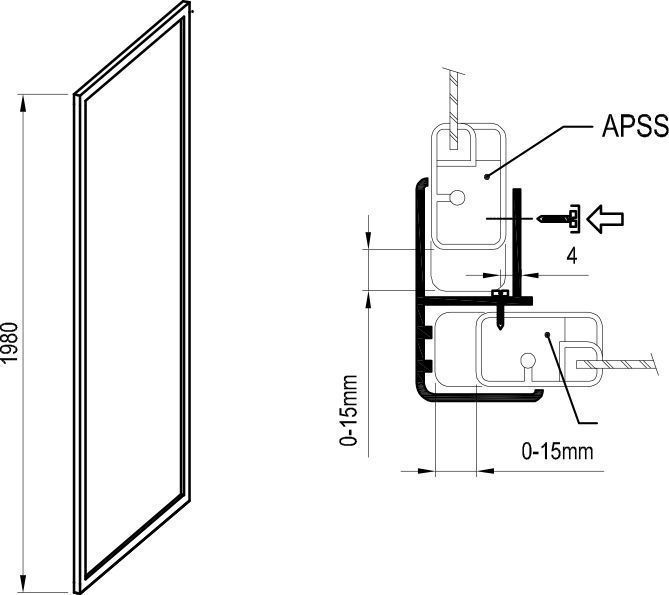
Toote kõrgus: 198 cm
Toode koosneb ühest liikumatu osast ja ei ole mõeldud iseseisvaks kasutamiseks. Toote komplekti kuulub nurgakinnitusprofiil kinnitamiseks dušiustele või dušinurgale. Seinale kinnitamiseks kasutatakse paigaldusprofiili, mis kuulub dušiuste või nurga komplekti. Reguleerimisprofiili NPS abil saab kompenseerida puuduvaid mõõte või tasandada ehitusava ebatasasusi. Liikumatu sein APSS kombineeritakse 1980 mm kõrguste dušiustega (ASDP3), et luua "L"-kujuline dušinurk. Kasutades kahte liikumatu seina tüüpi APSS ja dušiust ASDP3 või ühte liikumatu seina APSS ja dušinurka ASRV3+ASRV3, tekib "П"-kujuline dušinurk. Supernova seeria dušikabiinid ja -uksed tarnitakse valmiskujul ning neid saab kokkupanekuks monteerida ühe inimese poolt vaid ühe tunniga.